تحریریه معماری آرل
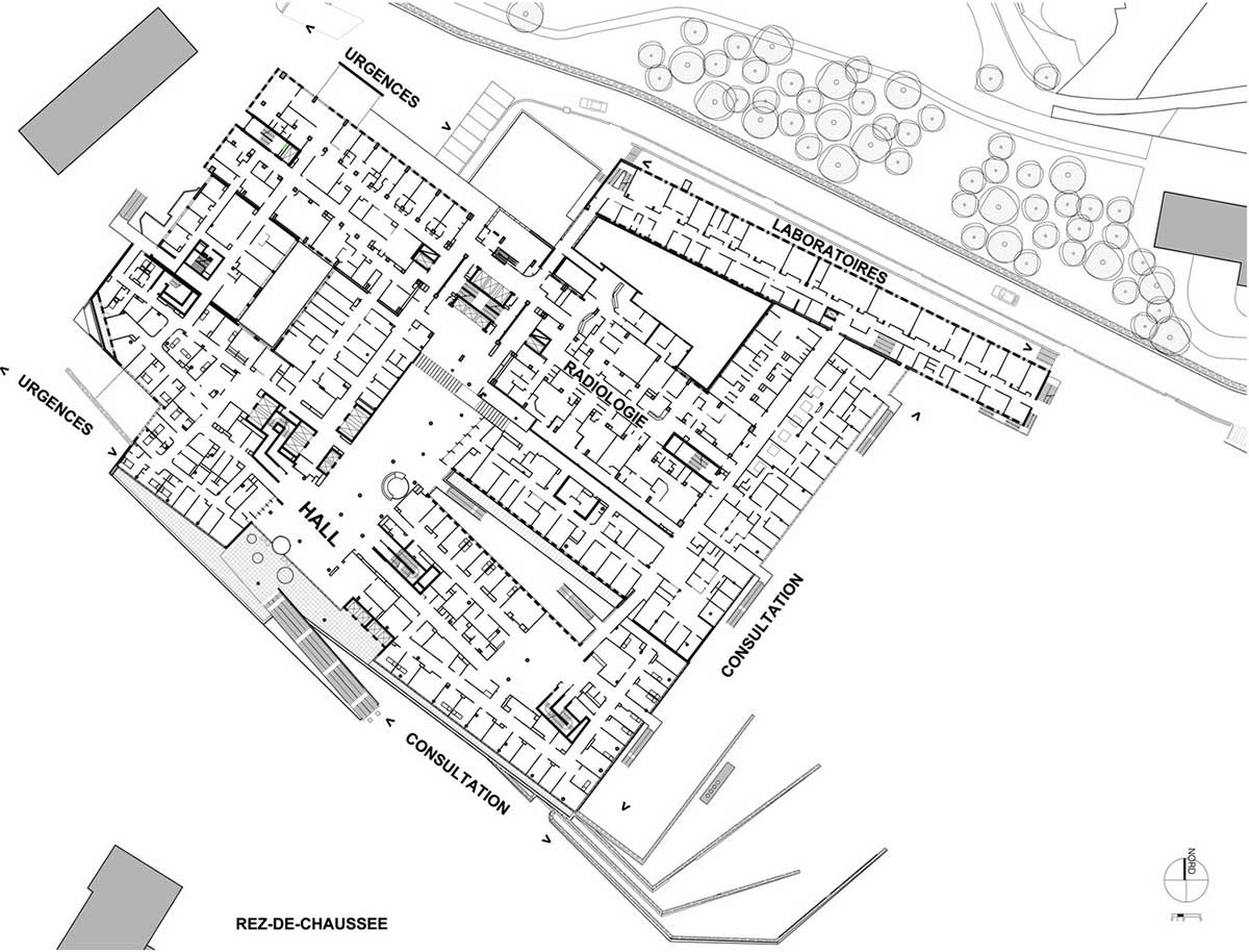
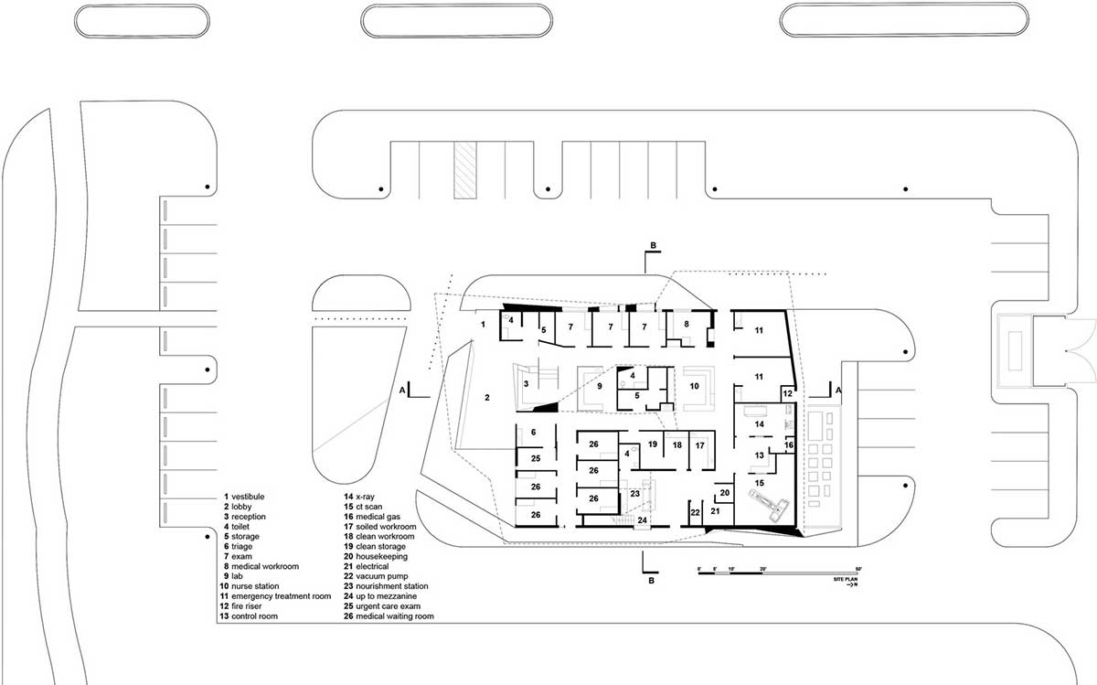
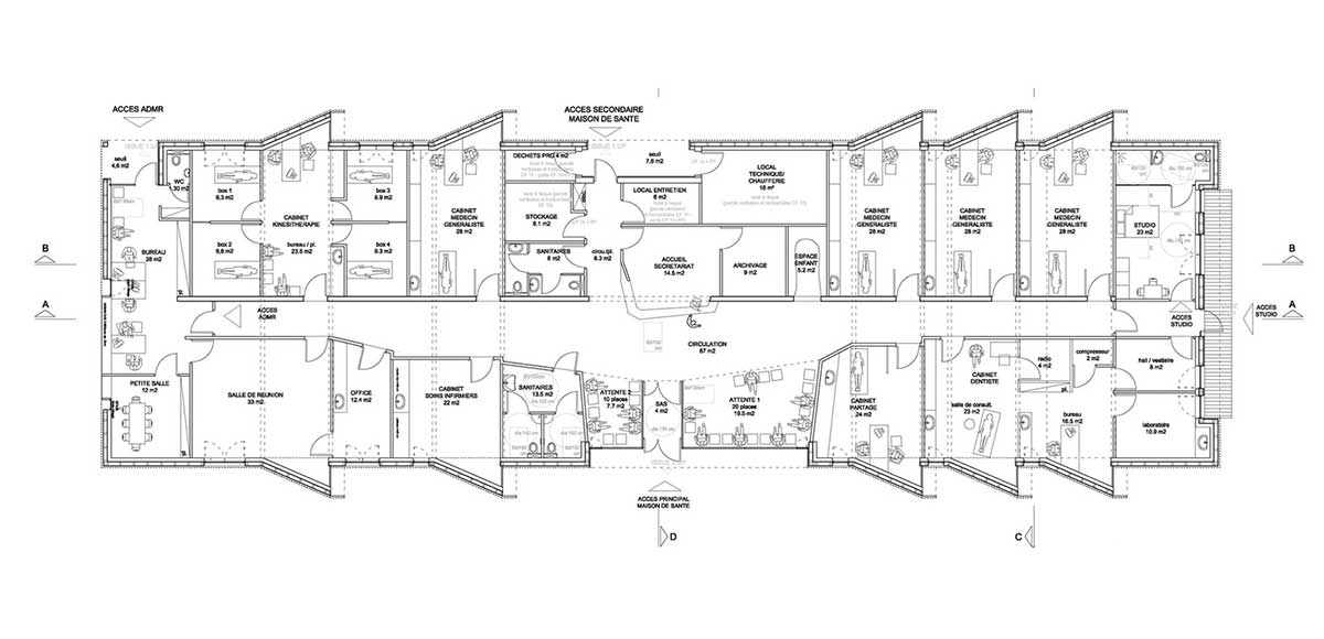
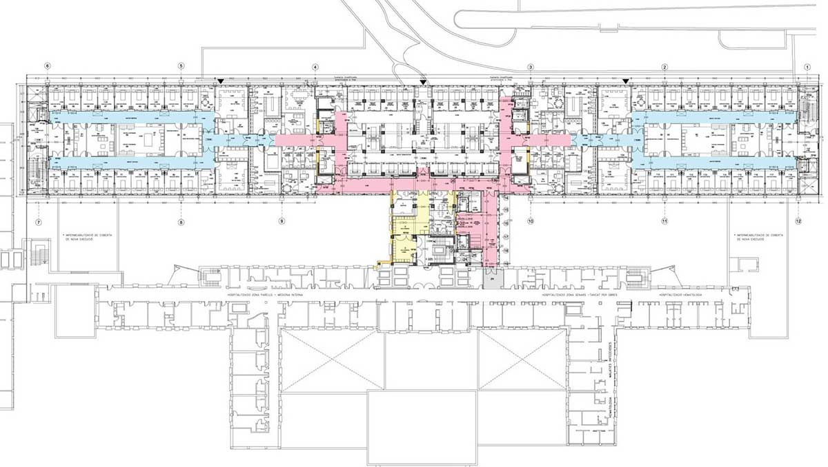
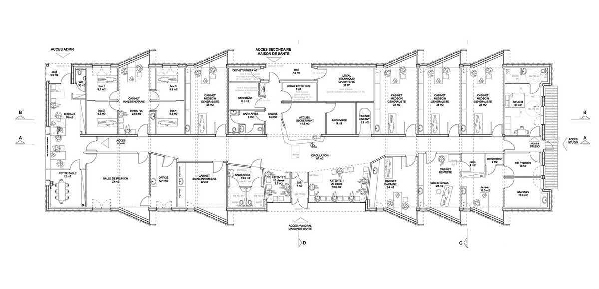
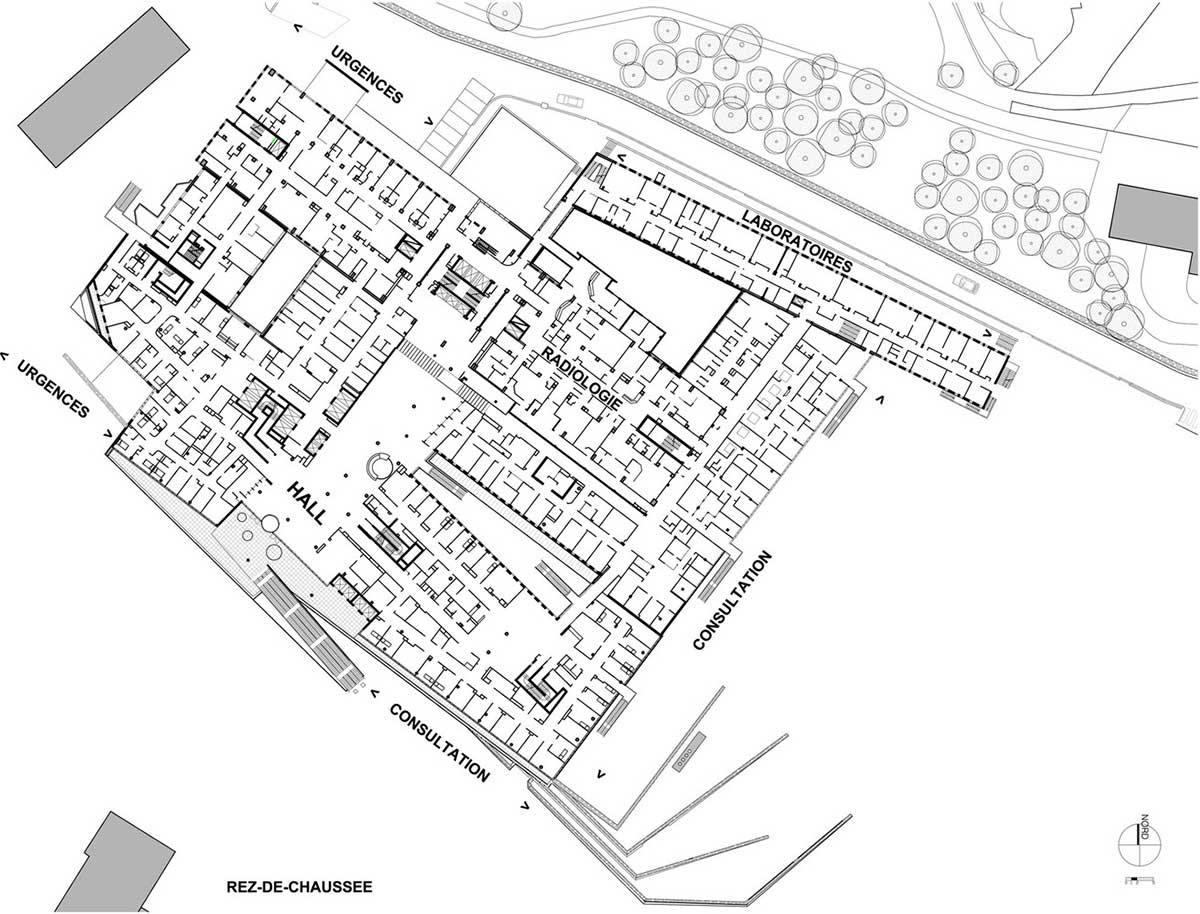
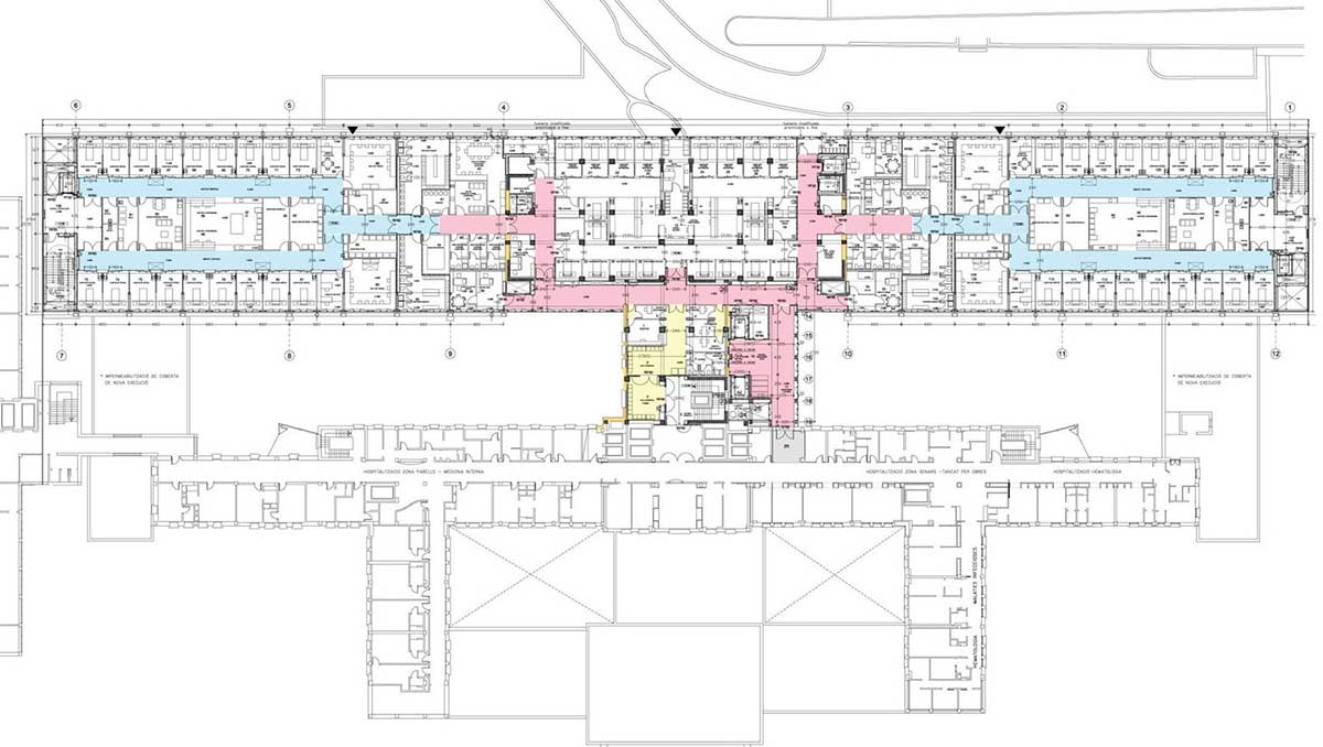
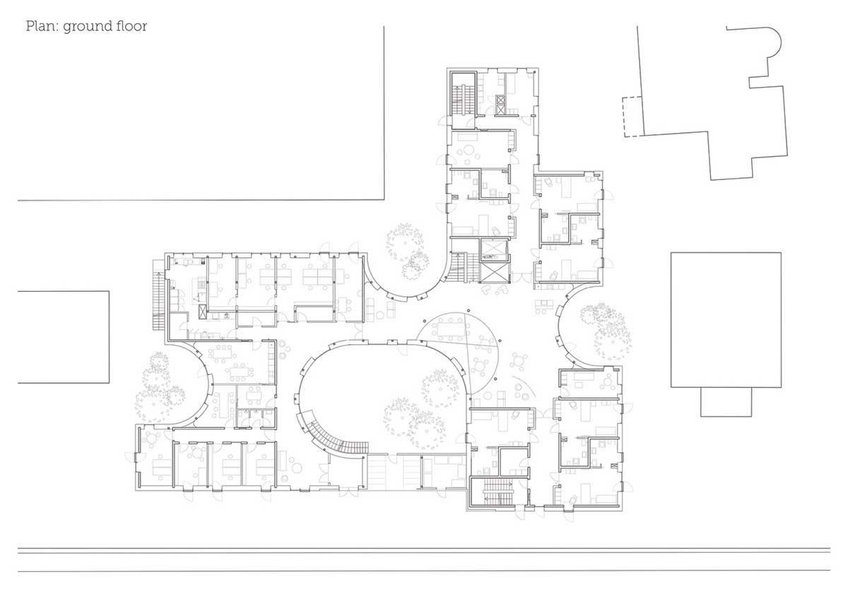
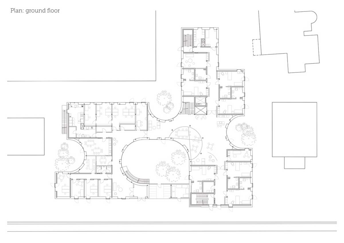
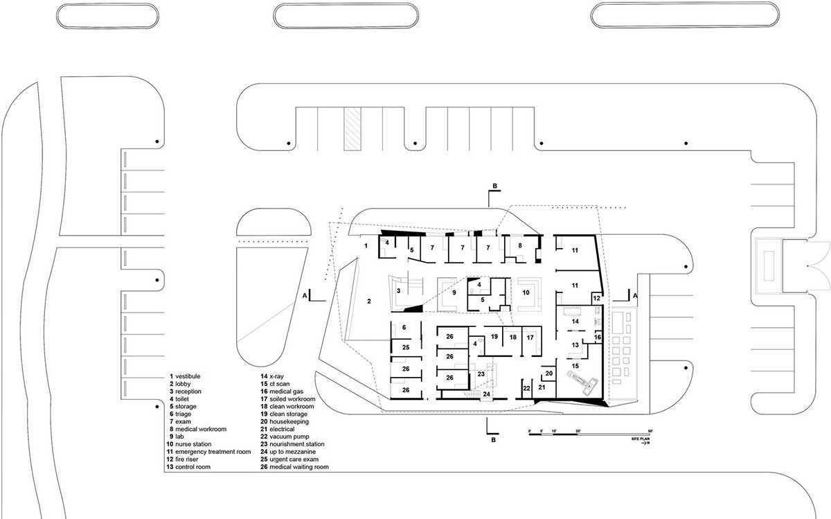
پلان کف طبقات و بررسی نمونه موردی آن طبقات یکی از بهترین و جالب توجه ترین شیوه های موجود برای ارائه و مشاهده جزئیات فضاهای درمانی، از جمله بیمارستان ها محسوب می شود. مراکز بهداشتی درمانی، بیمارستان و کلینیک ها، دارای سیستم های پیچیده ای می باشند که نیازمند مطالعه، بررسی توزیع سازمان فضایی بخصوصی می باشند. در ادامه مطلب بیش از 50 پلان کف طبقات از مراکز درمانی مختلف بسته به شرایط مختلف سایت پلان را منتشر کرده ایم تا شما با نمونه موردی های استاندارد و راهکارهای طراحی یک فضای درمانی آشنا شوید.با آرل در ادامه همراه باشید...
تحریریه معماری آرل
منبع : آرک دیلی
.jpg)
.jpg)
.jpg)
.jpg)
.jpg)
.jpg)
.jpg)
.jpg)
.jpg)
.jpg)
.jpg)
.jpg)
.jpg)
.jpg)
.jpg)
.jpg)
.jpg)
.jpg)
.jpg)
.jpg)
.jpg)
.jpg)
.jpg)
.jpg)
.jpg)
.jpg)
.jpg)
.jpg)
.jpg)
.jpg)
.jpg)
.jpg)
.jpg)
.jpg)
.jpg)
.jpg)
.jpg)
.jpg)
.jpg)
.jpg)
.jpg)
.jpg)
.jpg)
.jpg)
.jpg)
.jpg)
.jpg)
.jpg)
.jpg)
.jpg)

.jpg)

.jpg)

