تحریریه معماری آرل
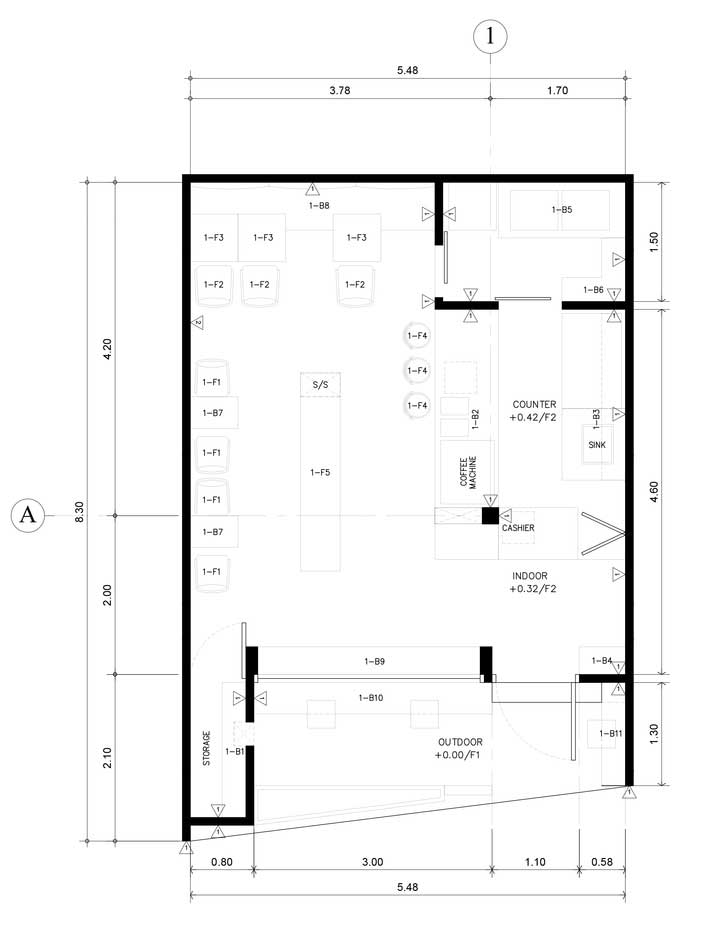
طراحی داخلی کافی شاپ می تواند نقطه برجسته و قوت یک فضا باشد یا آن مکان را به یک فاجعه تبدیل کند. با یک طراحی جالب و عملکرد فضایی مناسب می توانید صرف یک نوشیدنی ساده را به تجربه ای فوق العاده تبدیل کنید. با این حال زمانی که شما فقط چند متر مربع در اختیار دارید و می خواهید از انواع وسایل و ماشین های مخصوص پخت و پز استفاده کنید، طراحی دکوارسیون داخلی برای پیکربندی فضا کار آسانی نیست. لذا برای کمک به شما در ادامه 20 کافی شاپ با متراژ کوچک به همراه پلان قرار داده ایم که می تواند راهنمای شما در طراحی چنین فضایی باشد.12,000 Pink-Painted Wooden Sticks / Ideo arquitectura
.jpg)
.jpg)
Black Drop Coffee Shop / ark4lab of Architecture
.jpg)
Jury / Biasol
.jpg)
.jpg)
DALLAH / Associated Architects Partnership
.jpg)
.jpg)
Proti Proudu Bistro / Mimosa architekti
.jpg)
.jpg)
Fumi / Alberto Caiola
.jpg)
U Coppu / Studio DiDeA + Dario De Benedictis
.jpg)
.jpg)
Espresso Embassy / sporaarchitects
.jpg)
.jpg)
Big Small Coffee + B&B / Office AIO
.jpg)
.jpg)
zmianatematu / xm3
.jpg)
.jpg)
OJALÁ / Andrés Jaque
.jpg)
.jpg)
El Moro / Cadena Concept Design
.jpg)
.jpg)
To Tsai Tea Room / Georges Batzios Architects
.jpg)
.jpg)
Estação Ciência Cafe / Una Arquitetos
.jpg)
.jpg)
Invisible Coffee Room / I Like Design Studio
.jpg)
.jpg)
Verdin / Tavares Duayer Arquitetura
.jpg)
.jpg)
Be.Re / Filippo Bombace
.jpg)
.jpg)
The Platform / Lukstudio
.jpg)
Oop Coffee / PAA Arquitetura Comercial + Marina Garcia
.jpg)
.jpg)
Chimney Café / GOA
.jpg)
.jpg)
.jpg)
تحریریه معماری آرل
منبع: archdaily.com

.jpg)
.jpg)
.jpg)
.jpg)
