۰۲۱-۲۲۹۰۱۹۰۵-۶

تاریخ دوشنبه , ۱۳۹۸/۰۴/۱۰ ۱۰:۳۶
پلان و طراحی داخلی آپارتمان  زیر 50 متر
تحریریه معماری آرل
با افزایش قیمت مسکن و افزایش جمعیت در کلان شهرها  امروزه زندگی در  فضاهای کوچک بسیار رایج گشته و کاربران را ملزم به زندگی در چنین فضاهایی در تضاد با خانه های سنتی گذشته نموده است به همین دلیل  طراحان و معماران  سعی دارند تا با به کارگیری راهکارها و ترفندهایی فضاهای کوچک را مکان بهتری برای زندگی سازند.
طراحی پلان و فضای داخلی استودیو و آپارتمان های کوچک به دلیل محدودیت هایی که ایجاد می کنند چالش هایی را برای طراحان و محدودیت هایی را برای کاربران در بردارد و این چالش می تواند به دلیل عرصه بندی فضا و سیرکولاسیون های حرکتی کافی برای کاربران و پوشش دادن نیازهای تمامی افراد خانواده باشد که با انتخاب صحیح مبلمان، استفاده از مبلمان سفارشی یا کم جا،  طراحی متعادل پلان کاهش می یابد و می تواند مکانی کوچک را مانند فضایی بزرگ به خانه ای مناسب  برای زندگی با امکانات کافی بدون حذف حوزه های مختلف تبدیل نماید. سوئیت، استودیو یا آپارتمان های زیر 50 متر  به دلیل متراژ بسیار کم برای توزیع مناسب حوزه ها کار طراحان را دشوار می نماید اما اگر در ادامه با آرل همراه باشید نمونه هایی را مشاهده می کنید که در می یابید متراژ کم هم با طراحی هوشمندانه می تواند محدودیتی برای عملکرد و زیبایی نباشد و آسایش فیزیکی و عملکردی خوبی برای کاربران ایجاد کند.....

از 20 تا 29 متر مربع:

Batipin Flat / studioWOK

پلان و طراحی داخلی آپارتمان  زیر 50 متر
پلان و طراحی داخلی آپارتمان  زیر 50 متر
29m2 / 3XA
پلان و طراحی داخلی آپارتمان  زیر 50 متر
پلان و طراحی داخلی آپارتمان  زیر 50 متر
22m2 Apartment in Taiwan / A Little Design
پلان و طراحی داخلی آپارتمان  زیر 50 متر
پلان و طراحی داخلی آپارتمان  زیر 50 متر
Biombombastic / elii
پلان و طراحی داخلی آپارتمان  زیر 50 متر
پلان و طراحی داخلی آپارتمان  زیر 50 متر
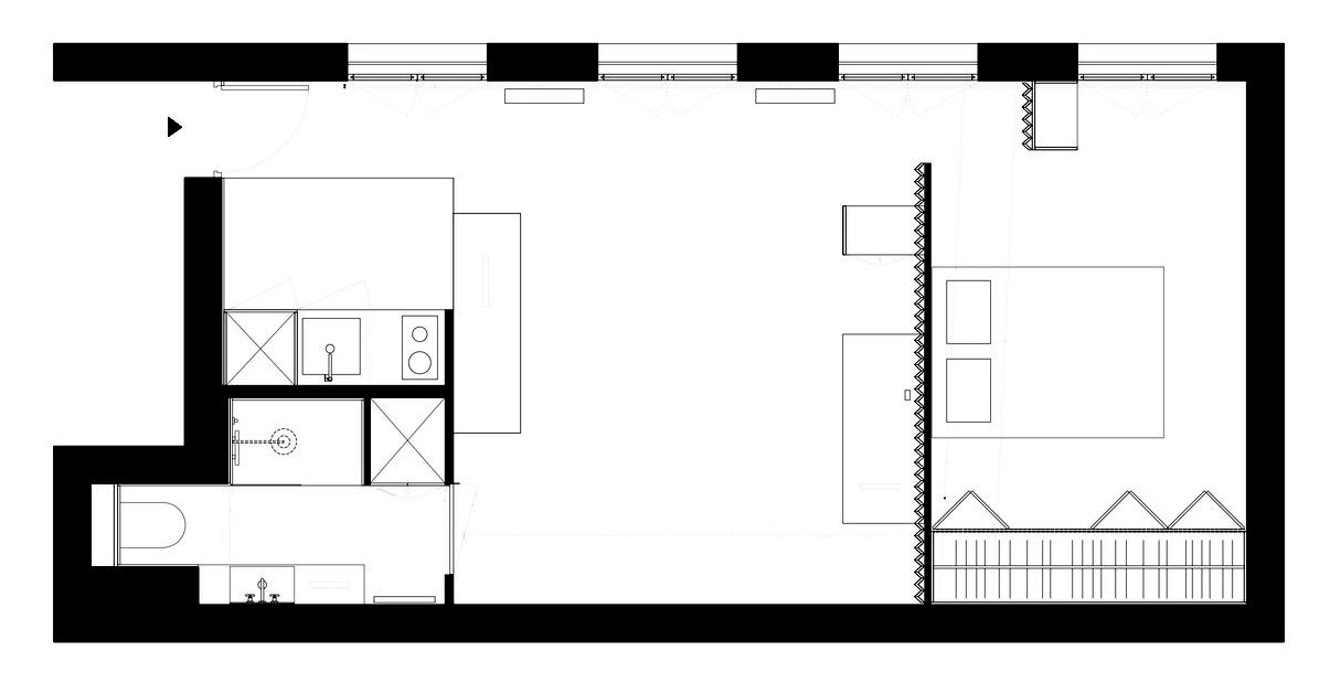
Darlinghurst Apartment / Brad Swartz Architect
پلان و طراحی داخلی آپارتمان  زیر 50 متر
پلان و طراحی داخلی آپارتمان  زیر 50 متر
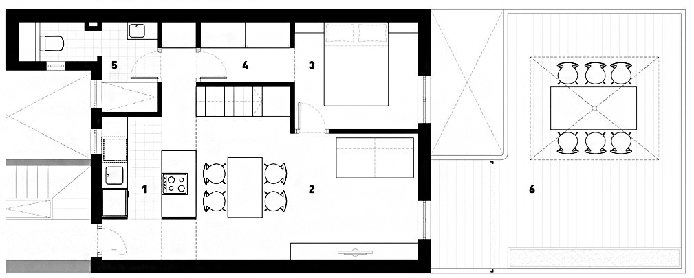
Montmartre Apartment / SWAN Architectes
پلان و طراحی داخلی آپارتمان  زیر 50 متر
پلان و طراحی داخلی آپارتمان  زیر 50 متر

از 30 تا 39 متر مربع:

Yojigen Poketto / elii
پلان و طراحی داخلی آپارتمان  زیر 50 متر
پلان و طراحی داخلی آپارتمان  زیر 50 متر
35m2 Flat / Studio Bazi
پلان و طراحی داخلی آپارتمان  زیر 50 متر
پلان و طراحی داخلی آپارتمان  زیر 50 متر
Small and Sculpted Studio Apartment / Catseye Bay Design
پلان و طراحی داخلی آپارتمان  زیر 50 متر
پلان و طراحی داخلی آپارتمان  زیر 50 متر
30m2 Flat in Paris / Richard Guilbault
پلان و طراحی داخلی آپارتمان  زیر 50 متر
پلان و طراحی داخلی آپارتمان  زیر 50 متر
Apartment 37 / Atelier Mearc
پلان و طراحی داخلی آپارتمان  زیر 50 متر
پلان و طراحی داخلی آپارتمان  زیر 50 متر
Cazo Apartment / Estúdio BRA
پلان و طراحی داخلی آپارتمان  زیر 50 متر
پلان و طراحی داخلی آپارتمان  زیر 50 متر
HB6B / Karin Matz
پلان و طراحی داخلی آپارتمان  زیر 50 متر
پلان و طراحی داخلی آپارتمان  زیر 50 متر
Apartment in Paris / UBALT
پلان و طراحی داخلی آپارتمان  زیر 50 متر
پلان و طراحی داخلی آپارتمان  زیر 50 متر
BB 501 / JAM
پلان و طراحی داخلی آپارتمان  زیر 50 متر
پلان و طراحی داخلی آپارتمان  زیر 50 متر

از 40-  49  متر مربع :

Tsukiji Room H / Yuichi Yoshida & associates
پلان و طراحی داخلی آپارتمان  زیر 50 متر
پلان و طراحی داخلی آپارتمان  زیر 50 متر
Xchange Apartments / TANK
پلان و طراحی داخلی آپارتمان  زیر 50 متر
پلان و طراحی داخلی آپارتمان  زیر 50 متر
Apartment In Vilnius Old Town / Interjero Architektūra
پلان و طراحی داخلی آپارتمان  زیر 50 متر
پلان و طراحی داخلی آپارتمان  زیر 50 متر
Gorki / Ruetemple
پلان و طراحی داخلی آپارتمان  زیر 50 متر
پلان و طراحی داخلی آپارتمان  زیر 50 متر
Raval Hideout / Eva Cotman
پلان و طراحی داخلی آپارتمان  زیر 50 متر
پلان و طراحی داخلی آپارتمان  زیر 50 متر
END THE ROC / nook architects
پلان و طراحی داخلی آپارتمان  زیر 50 متر
پلان و طراحی داخلی آپارتمان  زیر 50 متر
Bazillion / YCL Studio
پلان و طراحی داخلی آپارتمان  زیر 50 متر
پلان و طراحی داخلی آپارتمان  زیر 50 متر
Bath Kitchen House / Takeshi Shikauchi
پلان و طراحی داخلی آپارتمان  زیر 50 متر
پلان و طراحی داخلی آپارتمان  زیر 50 متر
Water Rhythm / Beige Design
پلان و طراحی داخلی آپارتمان  زیر 50 متر
پلان و طراحی داخلی آپارتمان  زیر 50 متر
Apartment Filippo / Studio Alexander Fehre
پلان و طراحی داخلی آپارتمان  زیر 50 متر
پلان و طراحی داخلی آپارتمان  زیر 50 متر
تحریریه معماری آرل
غزاله عزالدین
منبع: archdaily 
تعداد بازدید : ۱۰۴۰۴
ارسال نظرات

نظر شما :

مهندسین مشاور معماری
کاردستی با وسایل دور ریختنی
شرکت طراحی دکوراسیون اداری 
طراحی و اجرای فروشگاه زنجیره ای

عضویت در گروه معماران آرل

بعد از ثبت ایمیل ، حتما از طریق لینک فعال سازی ، عضویت خود را فعال کنید.

طراحی  ویلا
بازسازی ساختمان
اخذ تاییدیه کمیته نما 
طراحی داخلی مطب
تماس با گروه معماران آرل
: تهران ، نیاوران، سه راه یاسر،ساختمان آوا 2،
پلاک 250، طبقه 3، واحد 34
تلفن  :  ۶-۲۲۹۰۱۹۰۵-۰۲۱ 
فکس :    ۲۲۹۰۱۹۰۷-۰۲۱
ایمیل: [email protected]