تحریریه معماری آرل
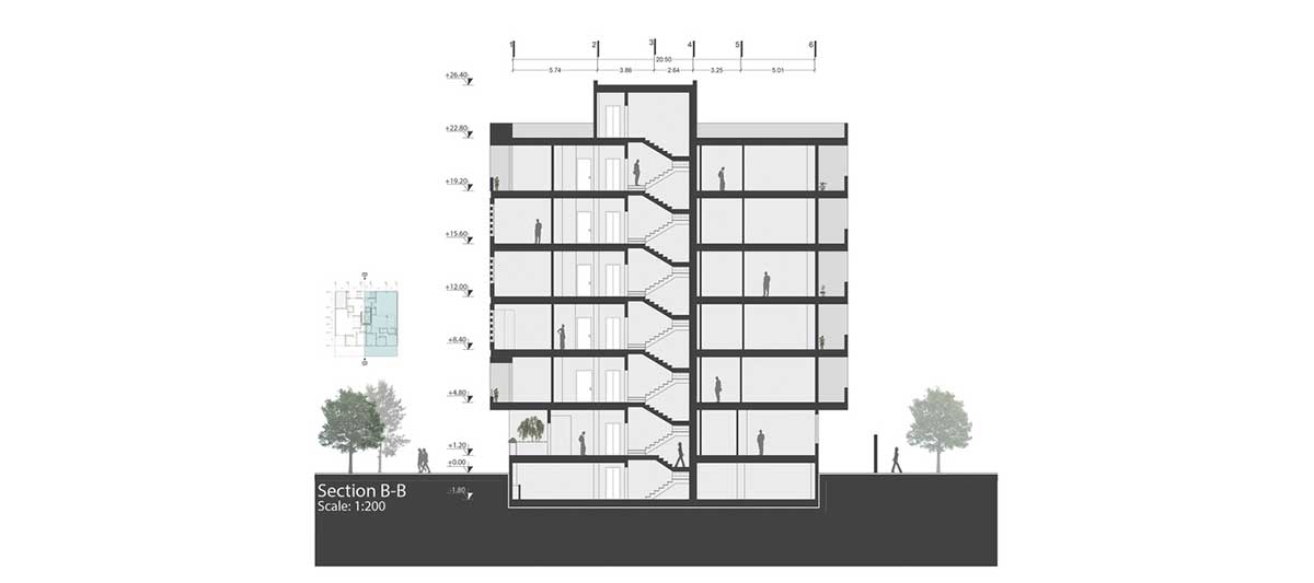
ساختمان مسکونی سالاریه در زمینی به مساحت 600 متر مربع به اجرا رسیده که در هر طبقه حدود 90 درصد مساحت زمین دارای مجوز ساخت بوده است. عرض زیاد ساختمان، تعددد واحدهای مسکونی، و حجم زیاد بازشوها در جدار بیرونی از جمبه مسائل مهمی بود که در این پروژه ها با آن مواجه بودیم. جلوگیری از اغتشاش و پراکندگی ناشی از وجود تعداد کثیری از پنجره مهم ترین مسئله ی طراحی در نظر گرفته شد..jpg)
برای ایجاد هماهنگی نیازمند پوسته ای برای پیوستگی نما بودیم. از طرف دیگر با توجه به قوانین شهرداری برای ایجاد کنسول های فضای مرکزی نما می توانست از کنسول استفاده کند و حداقل فاصله ی کنسول از ساختمان های جانبی دو متر بود. بدین ترتیب برای ایجاد کنسول های هماهنگ با قوانین شهرداری، باز باکس های مدرنی که در طبقات مختلف روی هم می لغزند و تراس های هر واحد را شکل می دهند استفاده شد. این باکس ها زمانی که به سطح نما برخورد می کنند بر فضای داخل نیز تاثیر می گذارند. بدین ترتیب باعث فرورفتگی فرم مسطح نما می شوند.
.jpg)
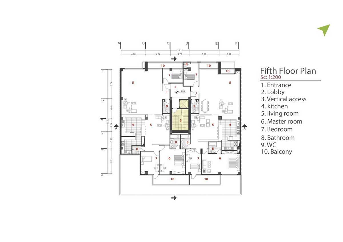
همچنین هر کدام از این باکس ها برای یک واحد نقش تراس را بر عهده دارد. از طرفی برای واحد دیگر در همان طبقه بوسیله ی فرورفتگی هایی که از برخورد باکس ها با سطح نما ایجاد می شود فضای تراس شکل می گیرد. اینگونه از دید مستقیم تراس های هر واحد به یکدیگر نیز جلوگیری شد تا مرز و محرمیت هر واحد حفظ شود. با شکل گیری باکس ها و تاثیر آنها بر فضای داخلی و فرم مسطح نما، سطح نمای اصلی به وجود آمد که دارای سه لایه شد: لایه ابتدایی که شامل باکس ها (کنسولها) است، لایه میانی که همان سطح اصلی نماست و لایه درونی که از برخورد باکس ها به سطح نما شکل گرفت و باعث فرورفتگی فرم شد. بر روی لایه ی میانی (سطح اصلی نما) که دارای بازشوهای زیادی بود. پوسته ای از الوارهای چوبی شکل گرفت تا تمامی سطح نما و بازشوها یکپارچه شوند و حجم به صورت پیوسته شکل بگیرد.
.jpg)
از طرف دیگر با ایجاد کنسول و تعدد لایه ها هر واحد کیفیت های مختلفی از ورود نور را تجربه می کرد: در داخل باکس ها نور به صورت مستقیم وارد شده، در قسمت نمای پوسته ای که با الوار چوبی پوشیده شده بود نور با عبور از چوب ها به صورت غیرمستقیم و هدایت شده به فضای داخل راه میابد.
در نهایت پروژه به صورت حجمی هماهنگ و پیوسته از ترکیب باکس ها و سطوح پوسته ای چوبی شکل گرفت که دارای هویتی یکپارچه بود.
.jpg)
معمار: گروه معماری هرم
تیم طراح: مرتضی علی نیا مقدم، حمید بابایی
موقعیت پروژه: شهر قم، ایران
نوع پروژه: مسکونی
مساحت پروژه: 3700 متر مربع
سال اتمام پروژه: 1397
.jpg)
.jpg)
.jpg)
.jpg)
.jpg)
.jpg)
.jpg)
.jpg)
.jpg)
.jpg)
.jpg)
.jpg)
.jpg)
.jpg)
.jpg)
.jpg)
.jpg)
.jpg)
.jpg)
.jpg)
.jpg)
.jpg)
.jpg)
.jpg)
.jpg)
.jpg)
.jpg)
.jpg)
.jpg)
.jpg)
.jpg)
.jpg)
.jpg)
.jpg)
.jpg)
.jpg)
.jpg)
تحریریه معماری آرل
منبع: archdaily.com


.jpg)
.jpg)
.jpg)
.jpg)