.jpg) 
	تحریریه معماری آرل
استودیو معماری Wutopia Lab اهل کشور چین، برای یک بینال معماری در شهر شنزن چین، اینستالیشنی را طرح ریزی کرده است که بر پایه بازسازی دو خانه با استفاده از رنگ های صورتی و آبی می باشد. این خانه ها، که یکی با گل پر شده و در داخل اینستالیشن دیگر، ورقه هایی از گوشت آویز شده است، در جستجوی ایده تناسب ساخت و موضوعاتی مانند جنسیت و غذا طراحی شده اند..jpg) 
معماران این پروژه معتقدند
تیم سازماندهی بینال 2017 Bi-City Biennale of Urbanism/Architecture از استودیو Wutopia Lab برای بازسازی این دو خانه در منطقه Dameisha Village که در حقیقت یک منطقه شلوغ و پرجمعیت شهری است، استفاده کرده است. معماران این پروژه معتقدند: " این دو بنا به نام های "خانه ای برای یک مرد" و "خانه ای برای یک زن" در حقیقت یک اینستالیشن کانسپچوال یا مفهومی می باشند، که هدف از آنها جستجو نقش های متضاد یک مرد و یک زن در فضای آشپزخانه بوده و به بررسی اینکه چگونه این نقش در عادت غذایی افراد منعکس می شود، می پردازد. استودیو Wutopia Lab در مورد این پروژه چنین بیان می کند که "محیط آشپزخانه های عمومی سنتی عمدتا متعلق به مردان بوده در حالیکه زنان بر آشپزخانه های خصوصی تسلط داشته اند.".jpg) 
کانسپت طراحی
این دو خانه براساس کانسپت دوگانه جنسیت طراحی شده است و نیروی زنانگی و مردانگی را به درون یک خانه آبی رنگ که مملو از گوشت بیکن و شراب می باشد و یک خانه کاملا صورتی رنگ که در حجاب پرده های ظریف قرار گرفته است، وارد می کند.برای "خانه ای برای یک مرد" طراحان از نمای آبی رنگ استفاده کرده اند که نمادی از رقابت و علاقه به جاویدان بودن می باشد. در داخل بنا جداره ها به رنگ سبز بوده و در کف و سقف از رنگ آبی استفاده شده است. رنگ های استفاده شده متاثر از نقاشی های هنرمند فرانسوی هنری ماتیس می باشد.
.jpg)
خانه ای برای یک مرد
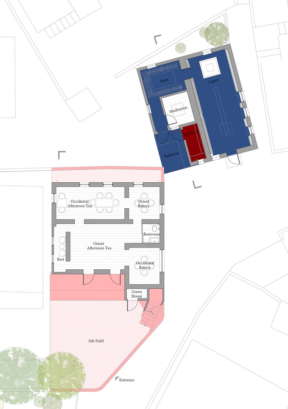
در داخل "خانه ای برای یک مرد" فضا با غذا و نوشیدنی پر شده است که نمادی از " علاقه به زنده ماندن و جاویدان بودن" می باشد. طرح " حوض شراب و انبوه غذا" به پیشرفت هایی که در زمینه نگهداری موادغذایی شده است مانند فرایند تخمیر و یا نمک سود کردن نیز اشاره دارد.بازدیدکنندگان این فضا به محض ورود، به دالان طویلی که جداره های آن با بطری های شراب پوشیده شده است داخل می شوند و در انتهای بنا به یک حوض پر از شراب می رسند. در ادامه مسیر، در فضای بعدی، از ورقه هایی از گوشت بیکن استفاده شده است که از سقف به مانند برگ های درخت آویزان شده اند.
.jpg)
در فضای مجاور، استفاده از باربیکیو نشان دهنده مردانه ترین بخش آشپزخانه می باشد که برای کباب کردن گوشت بر آتش استفاده می شود. در مرکز پلان این بنا یک فضای رازآلود به نام " secret room" وجود دارد که برای مدیتیشن به کار می رود و جداره های آن به رنگ سفید بود و سقفی دارد که رو به آسمان گشوده شده است. این فضا مملو از نمک می باشد. استفاده از نمک، عنصر مشترک بین این دو بنا است. در بنای مجاور که " خانه ای برای یک زن" می باشد، بازدیدکنندگان به محض ورود، به یک حیاط که دور تا دور آن دیوار کشیده شده است و کف آن مملو از نمک صورتی رنگ می باشد داخل می شوند. استفاده از نمک صورتی رنگ دقیقا متناسب با نمای صورتی رنگ پاستلی این بنا می باشد.
.jpg) 
خانه ای برای یک زن
طراحی " خانه ای برای یک زن" تجسم " ظرافت و حساسیت" زنان می باشد. در خارج بنا، پرده های مات و غیرشفافی، راهرو بنا را در برگرفته و مانند حجابی فضای راهرو را می پوشانند. استفاده از این پرده ها به درونگرایی زندگی زنانه اشاره دارد..jpg)
در داخل فضای " خانه ای برای یک زن"، بخش های مختلف متناسب رویکردهای متداولی که زنان در آشپزی دارند، طراحی شده است. در طبقه پایین دو فضا برای پخت نان به شیوه غربی و شرقی در نظر گرفته شده است. بعلاوه دو اتاق برای مراسم چای عصر طراحی شده است. در طبقه بالا لابیرنتی از فضاها وجود دارد. یکی از فضاها متناسب رژیم غذایی گیاه خواری طراحی شده و فضای دیگری مخصوص Ikebana، هنر مخصوص گل آرایی ژاپنی، می باشد.
.jpg)
استودیو Wutopia Lab در طرح خود، هر دو بنای اصلی که پنجره هایی نامنظم نیز دارند را به همان صورت اولیه، حفظ کرده است. این استودیو طراحی، فریم پنجره ها را از بنای اصلی برداشته و به جای آن از شیشه یک دست استفاده کرده است. با این کار، هر یک از این بناها نسبت به بنای مجاور خود گشوده شده اند و دید بین این دو بنا تامین شده است.
.jpg)
دوگانگی جنسیت و مردانه و زنانه بودن این بناها در قالب رنگ های صورتی و آبی به صورتی شاخص در میان بافت شهر خودنمایی می کند.
.jpg) 
 .jpg) 
 .jpg) 
 .jpg) 
 .jpg) 
 .jpg) 
 .jpg) 
 .jpg)
تحریریه معماری آرل
منبع: dezeen.com



.jpg)
