تحریریه معماری آرل
معمار: Maas Architectenموقعیت پروژه: برلیکام، هلند
سال اتمام ساخت: 2014
.jpg)
طراحی و معماری پروژه های ساختمانی در حومه شهر می تواند ویژگی های زیادی در اختیار معمار قرار دهد. طراحی ویلای مسکونی در حومه شهر برنامه متفاوتی نسبت به طراحی و اجرای یک ویلا یا ساختمان مسکونی در داخل شهر می طلبد. فضای گسترده و استفاده از امکانات رفاهی و شرایط اقلیمی مناسب دست طراح را باز می گذارد تا تغییرات عده ای در پروژه خود ایجاد کند. گروه معماری Maas Architecten با ارائه یک ویلای مدرن که با تأثیرپذیری از معماری مدرن اوایل قرن بیستم شکل گرفته، طرحی منحصربه فرد و زیبایی ارائه کردهه است.
.jpg)
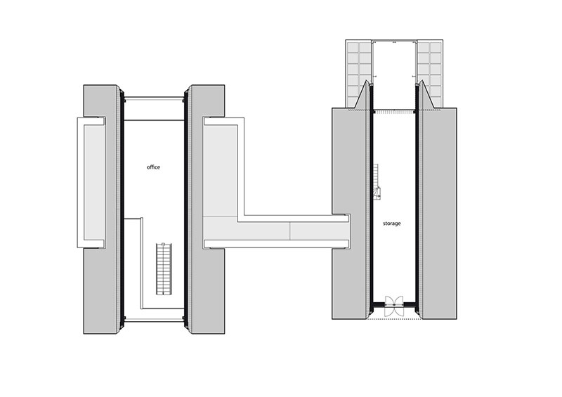
طرح ویلای فوق دارای پلان H شکل می باشد که به منظور ایجاد سیرکولاسیون باز و متصل کردن فضاهای گسترده ویلا ایجاد شده است. دو ضلع ساختمان دارای دیواری شیشه ای می باشد تا ساکنین از حداکثر نور طبیعی بهره ببرند. حجم اصلی پروژه تا حدودی ما را به یاد خانه های کاهگلی قدیمی می اندازد که توسط متریال های مدرن مانند شیشه، فلز و بتن به اجرا رسیده است. حتی سقف خانه از متریال نِی و کاه می باشد که کمی بخاطر شرایط اقلیمی و ارتباط نزدیک تر با طبیعت از این متریال استفاده است. فضاهای داخلی بر خلاف کلیت پروژه دارای رنگ سپید و حجم های ساده می باشد که سبک امروزی ساده گرایانه ای برای خود انتخاب کرده است.
.jpg)
.jpg)
.jpg)
.jpg)
.jpg)
.jpg)
.jpg)
.jpg)
.jpg)
.jpg)
تحریریه معماری آرل
منبع:archdaily.com


.jpg)

.jpg)
