.jpg)
تحریریه معماری آرل
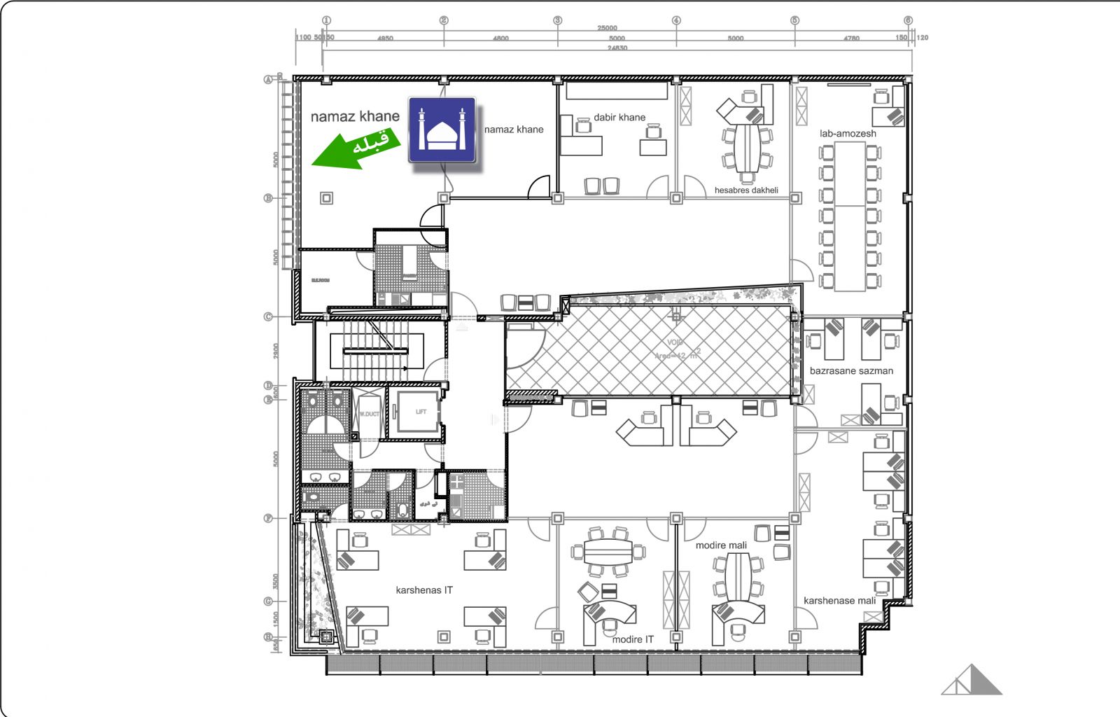
شرکت فرابورس ایران در نظر دارد تا با کمک و همفـکری طراحان و هنرمندان فعال کشور، طراحی داخلی نمازخانه و سالن کنفرانس خود را به مسابقه بگذارد. جهت کسب اطلاعات بیشتر و دانلود پلان ها با آرل همراه باشید.
مهلت ارسال آثار : 8 اسفند
نحوه ی ارسال: پست الکترونیک [email protected]
جوایر:
طرح منتخب نمازخانه: 30 میلیون ریال
طرح منتخب سالن کنفرانس: 40 ملیون ریال
مهلت ارسال آثار : 8 اسفند
نحوه ی ارسال: پست الکترونیک [email protected]
جوایر:
طرح منتخب نمازخانه: 30 میلیون ریال
طرح منتخب سالن کنفرانس: 40 ملیون ریال
تحریریه معماری آرل
منبع: ایمیل ارسالی از طرف سازمان فرابورس
.jpg)
.jpg)



