تحریریه معماری آرل
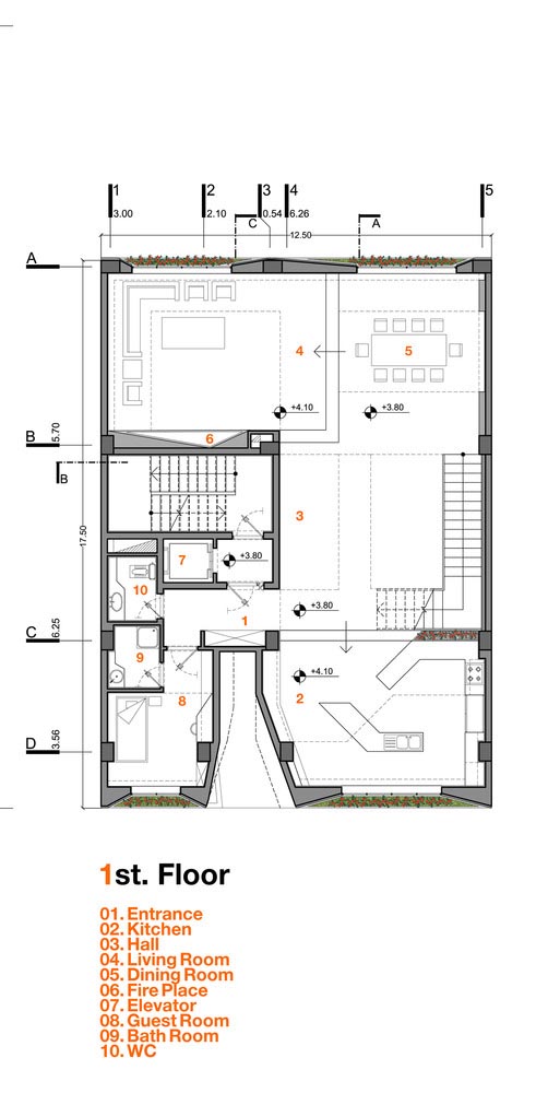
خانه افشاریان جزو طراحی هایی است که از نظر فرهنگی و هنری هم دارای اهمیت است و از این حیث قابل مقایسه با آثار نقاشی و یا حتی داستان های عاشقانه است. ساختمان افشاریان در زمینی به مساحت ۳۱۲ مترمربع، در شهر کرمانشاه بنا شده و داری سه طبقه و متعلق به یک خانواده چهار نفره است. بنابر اظهارت معمار پروژه، رضا نجفیان، بر اساس نظر مشتری مبنی بر اینکه در آینده قصد دارد ساختمان را واحدهای جداگانه تعمیم دهد، تصمیم بر این شد تا ساختمان به گونه ای طراحی گردد که بتواند در آینده از یک خانه ی مسکونی به یک آپارتمان مسکونی تغییر وضعیت دهد. این چالش پیش روی تیم طراحی و معماری قرار گرفت و تصمیم بر این شد که ساختمانی انعطاف پذیر طراحی گردد که در آینده این قابلیت را داشته باشد که بتواند به آپارتمانی با واحدهای جداگانه تغییر وضعیت دهد و از سوی دیگر پس از توسعه همچنان ظریف و موزون باقی بماند.
معماری خانه افشاریان کرمانشاه، رضا نجفیان
از معمار : خانه امروزی، آپارتمان فردا
معماری: رنا دیزاین
موقعیت: کرمانشاه: ایران
مساحت: ۶۰۰ متر مربع
سال: ۲۰۱۳
از معمار: خانه امروزی، آپارتمان فردا

درخواست دیگر مشتری این خانه یک پروژه ساده با طراحی منحصربفرد بیرونی بود. بر این اساس با در نظر گرفتن نسبت ارتفاع ساختمان به عرض آن، یک مربع با یک شکاف بر روی آن طراحی شده است، که ساختمان را به یک مجسمه در حال ظهور از خیابان تبدیل میکند. این راه حل نه تنها ورودی ساختمان را بسیار خوب نشان میدهد بلکه به اختلافات فضای سطوح بالایی به طور مناسبی پاسخ میدهد.
احترام به رهگذر که یک سنت ارزشمند در فرهنگ ایران است، در این پروژه بطوری که کمی بر سطح زمین خم شده است پدیدار میشود. همچنین بخشی از زمین شخصی به فضای سبز عمومی اختصاص داده شده است. بنابراین ساختمان از یک ساختمان مسکونی معمولی به سمت یک نقطه برجسته شهری با یک کیفیت بصری زیبا ودیدنی حرکت کرده است. این ساختمان تا انتقال معنای ظریف پروژه به ناظر و استفاده کننده آن و ارائه احترام و طراوت به آنها پیش رفته است.
طراحی داخلی و سازماندهی فضای دوستانه آن، محیط دلپذیر، بزرگ و روشنایی حیرت آور محیط، توسط همراهی چوپ و آجر فراهم شده است. تجربه یک محیط متفاوت در پروژه از ورودی تا اتاق خواب ها بوسیله یک پل معلق بالای دهلیز فراهم شده است، که یک احساس هیجان همراه با امنیت القا میکند.
تحریریه معماری آرل
مترجم: سارا صادقی
منبع: ARCHDAILY