۰۲۱-۲۲۹۰۱۹۰۵-۶

کلاسیک های معماری: خانه آبشار، اثر فرانک لوید رایت + پلان

نویسنده:
خانه آبشار اثر فرانک لوید رایت
تحریریه معماری آرل
دفتر معماری: فرانک لوید رایت
موقعیت پروژه: میلران، آمریکا
معمار: فرانک لوید رایت
مهندسان: مندل گلیکمان و ویلیام وسلی پیترز
کارفرما: آقا ادگار کافمن و همسرش
سال ساخت پروژه: 1939
عکاسان: Lee Sandstead و  Robert P. Ruschak- دفتر حفاظت منابع پنسیلوانیا شرقی
خانه آبشار اثر فرانک لوید رایت
در میلران پنسیلوانیا، در حدود منطقه Bear Run Nature Reserve که جریان آبی از ارتفاع 395 متری سطح دریا به سمت پایین جریان دارد و در ارتفاع 10 متری این جریان به صورت آبشار به پایین می ریزد، فرانک لوید رایت خانه ای خارق العاده طراحی کرد که به نام خانه آبشار مشهور است و ارتباط میان انسان، طبیعت و معماری را به خوبی آشکار می کند. این خانه به عنوان اقامتگاه آخر هفته برای صاحبان آن آقای ادگار کافمن و همسرش و پسرشان طراحی شده بود که رایت با این خانواده از طریق پسرشان آشنا شده بود که در مدرسه او در تلیسین تحصیل می کرد. 
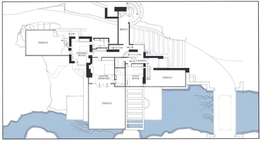
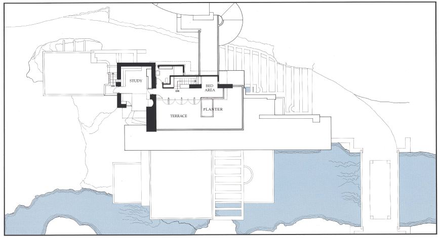
پلان خانه آبشار اثر فرانک لوید رایت
این آبشار برای این خانواده پیش از زمان طراحی خانه به مدت 15 سال یک مکان تفریحی بود و بنابراین زمانی که با رایت برای طراحی بنا قرارداد بستند، از او خواستند که یک دسترسی از آبشار نیز به خانه وجود داشته باشد تا بتوانند منظر آبشار را مشاهده کنند. در عوض رایت طراحی خانه را با خود آبشار تلفیق کرد و این خانه را دقیقا بالای آبشار بنا کرد تا آبشار را به عنوان بخشی از زندگی کافمن ها درآورد. 
خانه آبشار اثر فرانک لوید رایت
تحسین رایت از معماری ژاپنی در این پروژه، همانند بسیاری از پروژه های او، منبع الهام وی  قرار گرفته است. همانند خانه های ژاپنی، رایت قصد داشت بین انسان و طبیعت هارمونی ایجاد کند و تلفیق بنا و آبشار در طرح این خانه، نشان می دهد که او در این راه موفق عمل کرده است. 
خانه آبشار اثر فرانک لوید رایت
این خانه قرار بود منظر آبشار را نظاره کند درحالیکه بخشی از نمایش آبشار و صدای بی انتهای غرش آب شده بود. قدرت آبشار در این بنا همیشه حس می شده است البته نه به صورت بصری بلکه به واسطه صدای آن، که صدای ضربه آب همواره در همه جای خانه به گوش می رسد. 
خانه آبشار اثر فرانک لوید رایت
رایت طرح خانه را حول شومینه، قلب خانه که برای جمع شدن اعضای خانواده در کنار هم به کار می رود، طرح ریزی کرده بود،. در این طرح یک صخره، شکافی در شومینه به وجود آورده و به صورت فیزیکی آبشار را به درون خانه می کشاند. بعلاوه رایت با بلند کردن غیر معمول دودکش خانه به عنوان بلندترین نقطه آن که از بیرون خودنمایی می کند، نگاه ها را به این کانسپت جلب کرد. 
خانه آبشار اثر فرانک لوید رایت
خانه آبشار از دو بخش تشکیل می شود: خانه اصلی خانواده کافمن که بین سال های 1936 تا 1938 ساخته شده بود، و خانه مهمان که در 1939 تکمیل شد. خانه اصلی از فضاهای ساده تشکیل شده بود که توسط خود رایت مبلمان شده بودند، با یک فضای نشیمن گسترده و باز و یک آشپزخانه کوچک در طبقه اول و سه اتاق خواب کوچک که در طبقه دوم قرار گرفته بودند. طبقه سوم اتاق مطالعه و اتاق خواب ادگار جونیور، فرزند خانواده کافمن بود. کلیه فضاها با طبیعت پیرامون خود ارتباط داشته و فضای نشیمن حتی پله هایی داشت که مستقیما به زیر آبشار می رفت. 
خانه آبشار اثر فرانک لوید رایت
سیرکولاسیون داخل خانه شامل راهرو های باریک و تاریک بود با این نیت که افراد هنگام عبور از آنها در مقایسه با فضای گسترده ای که کمی جلوتر به آن برخورد می کنند، کمی احساس فشردگی کنند. سقف فضاها کوتاه طراحی شده و در برخی از فضاها تنها حدود 2 متر است، چرا که بتواند چشم را به صورت افقی و به سمت منظر خارج بنا هدایت کند. زیبایی این فضاها در گسترش آنها در طبیعت است که با تراس های بلند و کنسول شده این اتفاق ممکن شده است. گوشه های گونیا شده تراس های متعدد باعث شده است این تراس ها فارغ از عملکردشان در کنار هم به صورت یک مجسمه به نظر برسند. 
خانه آبشار اثر فرانک لوید رایت
این تراس ها با پیش آمدگی هایشان، یک فرم افقی و پیچیده را شکل داده اند که فضا را روی بستر زمین به موازات آن می گستراند. برای نگه داشتن این کنسول ها از نظر سازه ای رایت با دو مهندس به نام های مندل گلیکمان و ویلیام وسلی پیترز مشورت کرد. راهکار آنها برای این کار، در نوع متریال بود.
خانه آبشار اثر فرانک لوید رایت
این بنا از یک فرم واضح با مصالح بنایی بهره می بردکه با سایت پیرامون آن ارتباط برقرار می کرد و برای تراس ها، تصمیم به استفاده از سازه بتنی تحکیم شده گرفته شد. این اولین باری بود که رایت با بتن برای بناهای مسکونی کار می کرد و بنابراین در ابتدا خیلی مایل به استفاده از این متریال نبود اما این متریال انعطاف پذیری لازم برای اینکه به هر شکلی قالب بگیرد را داشت و زمانیکه با فولاد تحکیم می شد مقاومت خوبی در برابر نیروی کشش نشان می داد. 
خانه آبشار اثر فرانک لوید رایت
نمای خارجی خانه آبشار یک طرح افقی قوی را با استفاده از آجرها و تراس های بزرگ خود به نمایش می گذارد. پنجره ها روی نما نیز شرایط خاصی داشتند و وقتی در گوشه های بنا باز می شدند، این خانه جعبه ای را شکسته و آن را به سوی خارج بنا می گشودند. 

بی نقص بودن این جزئیات باعث بی نقص بودن و کمال خود این خانه شده است و اگرچه مشکلات سازه ای این خانه به خاطر موقعیت آن باعث شده است دائما نیاز به نگهداری داشته باشد اما جای هیچ شکی نیست که این بنا که امروز یکی از نقاط تاریخی ثبت شده ملی است، کار یک نابغه بوده است. از کنسول های جسورانه آن گرفته تا جزئیات پنجره هایی که در کنج قرار گرفته اند و صدای دائمی جریان آب، خانه آبشار توانسته است برخورد مادی و معنوی انسان و معماری در هارمونی با طبیعت را به نمایش بگذارد. تنها کاری که باید بکنید این است که به صدایی که در این خانه طنین انداز می شود، گوش کنید. 

خانه آبشار اثر فرانک لوید رایت
خانه آبشار اثر فرانک لوید رایت

پلان خانه آبشار از فرانک لوید رایت 

خانه آبشار یکی از کارهای استاد Frank Lloyd است که اندیشه هنری و معمارانه دنیا را دگرگون نمود. در دهه اخیر به واسطه رقم ظاهری او به (سوی) دید بعنوان مبتکر جسور شناخته شد.  در ادامه برای شما معماران عزیز پلان های از این خانه را جمع آوری کرده ایم.
 
پلان خانه آبشار از فرانک لوید رایت


پلان خانه آبشار از فرانک لوید رایت


پلان خانه آبشار از فرانک لوید رایت


پلان خانه آبشار از فرانک لوید رایت

پلان خانه آبشار از فرانک لوید رایت
 
تحریریه معماری آرل
منابع :
https://www.archdaily.com/60022/ad-classics-fallingwater-frank-lloyd-wright/
https://www.howardmodels.com/frank-lloyd-wright/falling-water-model/falling-water-11.html
https://esource.netne.net/Persian/M-FA-ZK-KhaneAbshar.htm
archdaily.com & کتاب فرانک لوید رایت اثر دونالد هافمن، انتشارات Dover Pubns چاپ 1993 و کتاب فرانک لوید رایت اثر کارولین نایت، انتشارات Parragon چاپ 2005 و وبسایت www.fallingwater.org
مهندسین مشاور معماری
کاردستی با وسایل دور ریختنی
شرکت طراحی دکوراسیون اداری 
طراحی و اجرای فروشگاه زنجیره ای

عضویت در گروه معماران آرل

بعد از ثبت ایمیل ، حتما از طریق لینک فعال سازی ، عضویت خود را فعال کنید.

طراحی  ویلا
بازسازی ساختمان
اخذ تاییدیه کمیته نما 
طراحی داخلی مطب
تماس با گروه معماران آرل
: تهران ، نیاوران، سه راه یاسر،ساختمان آوا 2،
پلاک 250، طبقه 3، واحد 34
تلفن  :  ۶-۲۲۹۰۱۹۰۵-۰۲۱ 
فکس :    ۲۲۹۰۱۹۰۷-۰۲۱
ایمیل: [email protected]