تحریریه معماری آرل
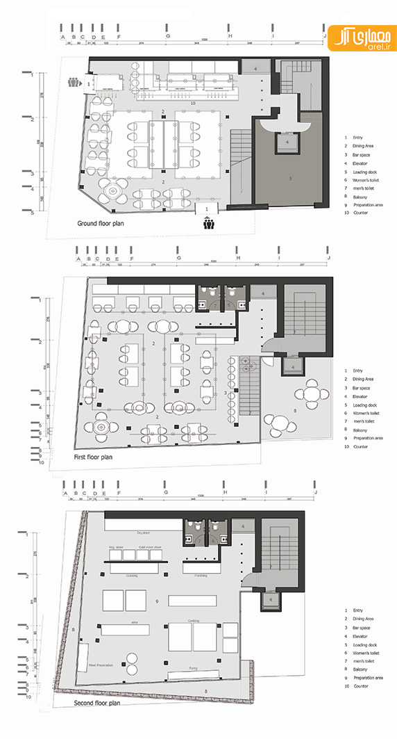
پروژه ریواس با دارا بودن موقعیت مکانی ممتاز به علت قرارگیری در نبش دو خیابان اصلی و دید بی مانند آن به یکی از بزرگراه های اصلی شهر . کارفرما را بر آن داشت تا دست به بازسازی فضای رستوران پیشین زده و آن را به یک فضای رستوران شهری تبدیل کند . ساختمان این پروژه بنایی قدیمی با قدمت 140 سال است که پیش تر کاربردی تجاری و مسکونی داشته است و سپس به فضای رستوران تغییر کاربری داده است . این طراحی توسط معمار مهسا مجیدی و تیم طراحی شان انجام شده است.
ایده ی اولیه ی نمای رستوران ریواس در اولین بازدید از کارگاه به هنگامی که کارگران رستوران پیشین مشغول حمل شیشه های نوشیدنی مصرف شده در رستوران جهت بازیافت بودند، شکل گرفت. در حالیکه کارفرما خواستار بارزتر کردن بنا در این گوشه از فضای شهری بود . گروه معماری در جهت بارزتر کردن نما و تبدیل آن به یک بیلبورد شهری جهت تاثیر گذاری هر چه بیشتر در محیط پیرامون بر آمد. و این بود که در نمای بدنه از بطری های بازیافتی رستوران استفاده شد. این بطری ها علاوه بر درخشش خود توسط نورهای پارامتریک در شب و عمل کردن مانند یک دیواره ی سبز در طول روز، نماینگر تاکید کارفرما بر مسئله ی بازیافت است که متاسفانه در ایران مورد بی توجهی قرار می گیرد .
این رهیافت علاوه بر این تاثیر بسزایی بر فضای آشپزخانه نسبت به حالت پیشین خود داشته است در حالیکه در حالت قبلی قسمت آشپزخانه تماما به وسیله ی تابلوی آهنی رستوران پوشانده شده بود . طرح جدید نما نور روز و امکان گردش طبیعی هوا را برای کارمندان فراهم کرده و فضای مطلوب تری را جهت کار ایجاد می کند .


نهایتا پله ی طبقه ی همکف که سابقا به نمای شمالی بنا الحاق شده بود به جداره ی داخلی آن منتقل گشت و بدین وسیله تراس بسیار مطبوعی جهت استفاده رستوران به وجود آمد.

طبقه ی اول رستوران ریواس که به وسیله ی درختان سبز محصور شده است فضایی آرام بخش و منحصر به فرد برای کاربران فضا ایجاد می کند. در این پروزه به صورت آگاهانه از دامنه ی از مواد استفاده شده که منعکس کننده ساختار طبیعی آن است . رستوران ریواس به مانند یک تندیس با معماری قوی خود در بستر اطراف خود ایفای نقش می کند.





تحریریه معماری آرل
.jpg)


.jpg)
.jpg)
.jpg)